Добавить новость

Появился проект коттеджного поселка для чиновников на Черном озере

Разработка проекта обошлась федеральному бюджету в 5 миллионов рублей

В правительстве Кировской области потратят 100 миллионов рублей на строительство новых зданий в резиденции на Черном озере. Представители регионального отделения одной из партий опубликовали проект.

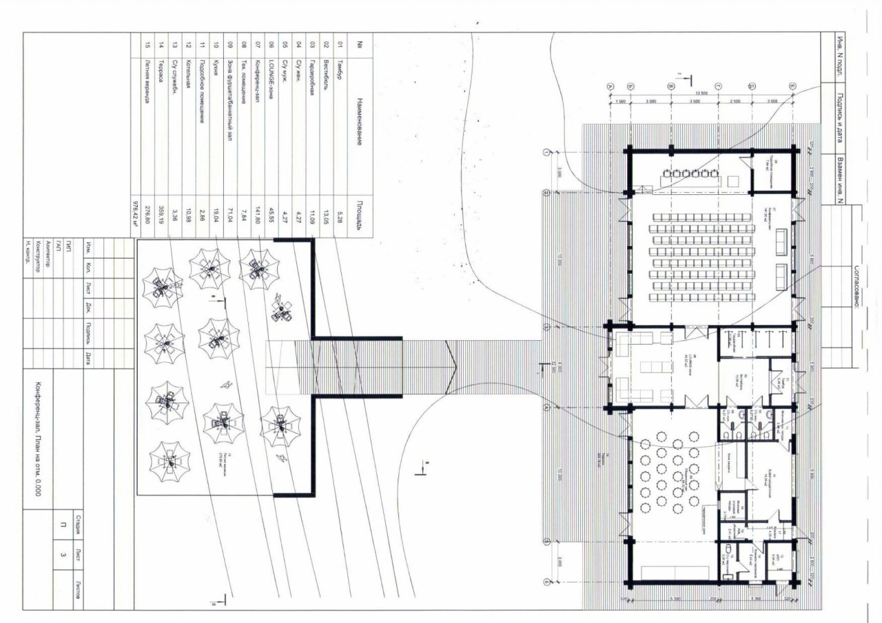
Новые объекты комплекса зданий №4 Правительства региона - это 5 двухэтажных коттеджных домов с панорамными окнами, балконами и террасой. Общая площадь зданий - 2500 квадратных метров, а по постановлению - 3 510. На территории также построят конференц-зал, в котором будет ресторан и летняя веранда, переходящая в пляжную зону.

Кроме того, на берегу озера появится баня площадью 90 квадратных метров с сауной, парной и комнатой отдыха. Рядом будет небольшой пляж с террасой и подогреваемым бассейном под открытым небом.

Напомним, что разработка проекта обошлась федеральному бюджету в 5 миллионов рублей. На строительство комплекса потратят 95 миллионов рублей. Строительство элитного комплекса будет закончено до 2023 года.

Руководитель отделения партии направил запрос в прокуратуру с требованием провести детальную проверку в отношении председателя правительства региона Александра Чурина на предмет нецелевого расходования бюджетных средств в особо крупном размере. В прокуратуре подтвердили Progorod43, что по запросу проводится проверка.

Moscow.media
Музыкальные новости

Новости Кировской области





Все новости Кировской области на сегодня
Губернатор Кировской области Александр Соколов



Rss.plus

Другие новости Кировской области




Все новости часа на smi24.net

Новости Кирова


Moscow.media
Киров на Ria.city
Новости Крыма на Sevpoisk.ru

Другие города России